-
Windows
Windows
-
French Doors
French Doors
-
Patio Doors
Patio Doors
-
Front Doors
Front Doors
-
Roller Shutters
Roller Shutters
-
Window Sills
Window Sills
Sign in
Contact us

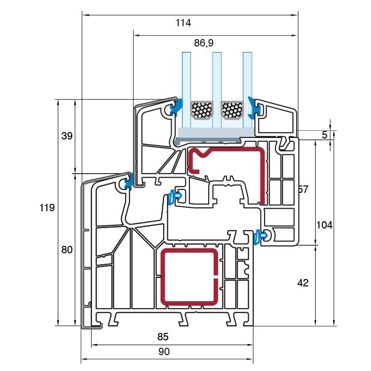
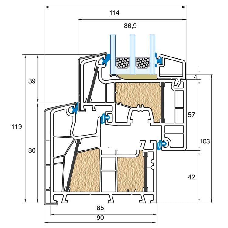
Please note that these are standard drawings. If you would like to know exactly which profiles and components are installed prior to ordering, please contact our customer service at +49 711 860 601 60 or by email info@windows24.com. Our experts would be happy to assist you with configuration and answer any questions regarding our products.